Las casas en forma de L permiten hacer independiente cada área y que los cuartos cuenten con una buena vista hacia afuera, este estilo se puede lograr de manera planificada. Además, brinda intimidad social y en los cuartos.
Armando Iachini, director de Construcciones Yamaro, menciona las principales ventajas de esta arquitectura:
- Distribución adecuada, sobre todo de la cocina, comedor y salón principal.
- Facilidad para decorar de acuerdo a gustos particulares.
- Separación de los espacios, permitiendo privacidad.
Uno de sus beneficios es que es adaptable, tanto para el campo como para la ciudad, pero debe tener una buena planeación respecto al viento, el sol y toda la naturaleza presente.
¿Cómo están distribuidos los planos de viviendas en forma de L?

Generalmente poseen uno o dos pisos, brindando más amplitud para que todos los habitantes puedan hacer diferentes actividades.
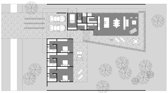
La sala, donde se preparan los alimentos y se comen, los servicios se ubican arriba; en la parte izquierda tres dormitorios cada uno con baño incluido y grandes closets.
De esta manera sería el funcionamiento de la vivienda: los habitantes entrarían en sus carros por la parte central, llegan al sector de celebraciones, así no hay cruce de circulaciones y hacen todo individualmente.
Sus dimensiones son abiertas, con luz, las puertas más recomendables son las de vidrio francesas, así como ventanas grandes. Mientras, el patio, puede crearse acompañado de naturaleza y vegetación.
Es de mucha relevancia la presencia de árboles, flores o plantas, porque esto permitirá que el aire sea más acogedor y saludable con una decoración adecuada para este estilo.
¿Qué tipo de materiales se utilizan para crearla?

Los materiales de construcción varían dependiendo del clima del lugar en donde vivirás, si es húmedo es mejor que estos sean impermeables y de sencilla limpieza, como cerámica o piedra.
La parte interna de la casa debe llevar un mineral duro y los techos una cobertura de acabado con brillo.
También te puede interesar: Armando Iachini: Las excavaciones, proceso fundamental en la construcción – Armando Antonio Iachini Lo Medico





